首页 产业资讯 产业园 写字楼 厂房 仓库 土地 政府招商
主页 > 厂房 > >房山大兴亦庄周边12米单层|联排厂房

房山大兴亦庄周边12米单层|联排厂房项目编号:更新时间:2022-04-18 09:25

均价:4500元/平米
  • 物业类型:
  • 面积:2000平米
  • 地址:房山涞水县经济开发区北区G5京昆高速涞水新城出口往北保野公路2公里处
17330250108石女士

联系我时,说是在商办空间网上看到的,谢谢!

预约看房
姓名:
电话:
预约房产:
提交时间: " type="text" id="shijian" style="width:100px" class="intxt" />
  • 项目详情
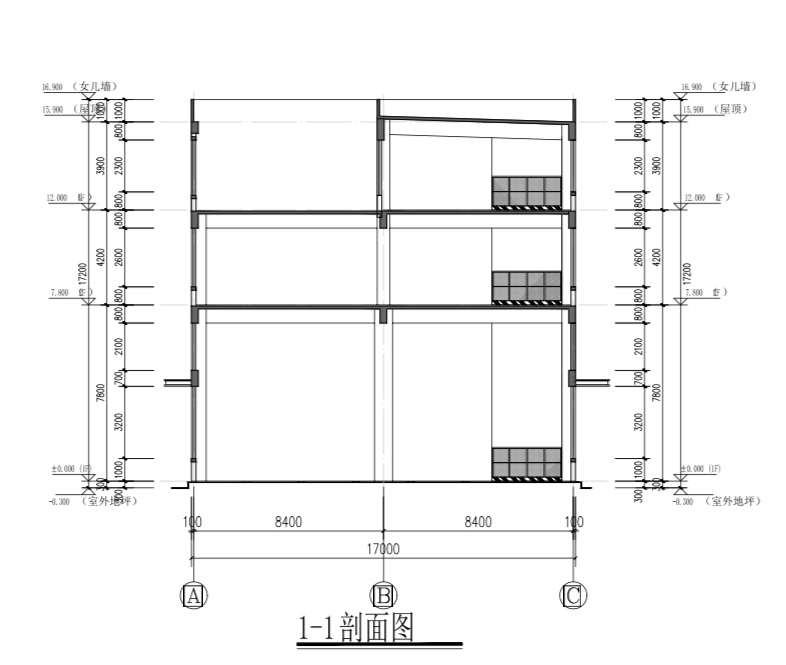
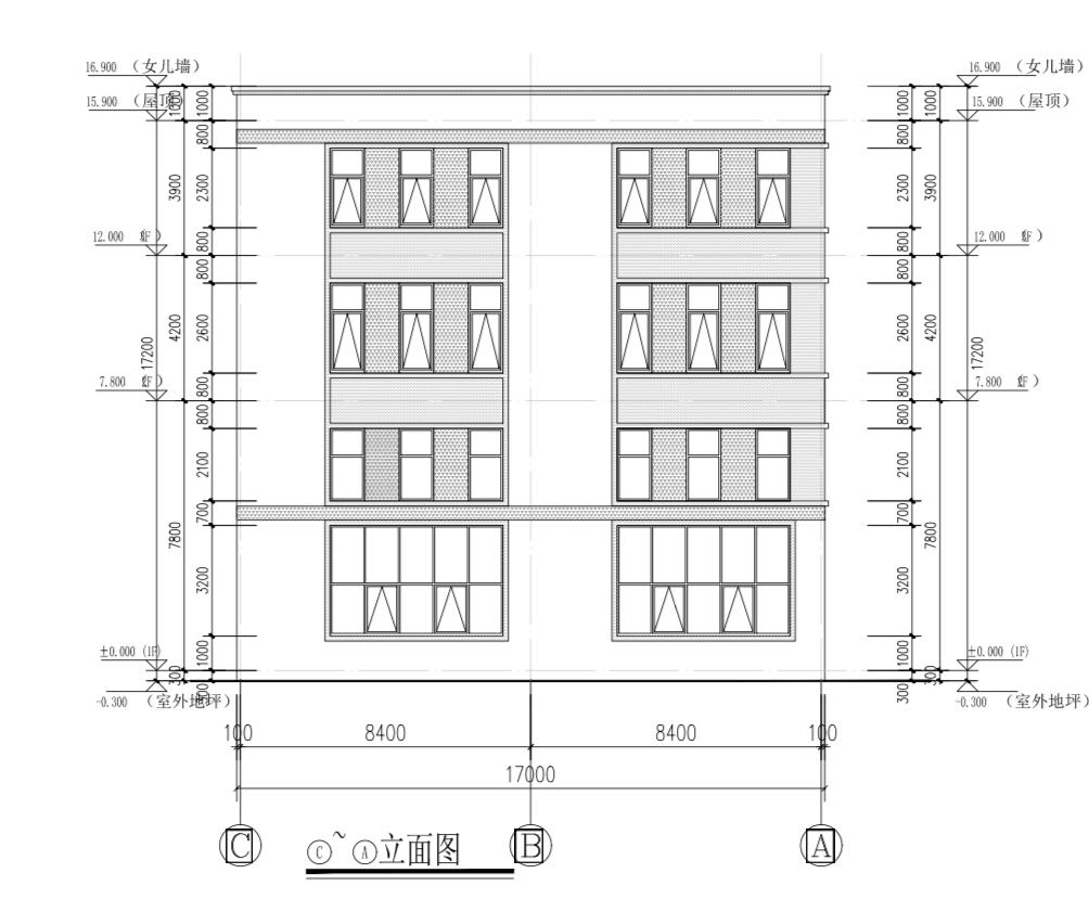
园区紧邻北京房山区,距市区30公里,项目总规划用地500亩,首期开发80亩,总建筑面积5万方,国有工业用地50年大产/权,企业独立房本;产品分火车头单层12米厂房/独栋双拼,形式多样,面积灵活多变可自由组合。
开发商:隆基泰和集团(全国500强、民营企业100强、产业运营商10强)大园区开发有保障;
园区名称:涞水和谷智能科技产业园
项目位置:涞水开发区北区京昆高速涞水新城出口保野公里往北2公里处(紧邻央企中电科电子科技园)
土地性质:国有工业用地,50年企业独立产权(可融资贷款)
总占地面积:总占地80亩
产品类型:可生产、研发、办公、仓储等;
多种户型:火车头厂房(12米+办公4.2米、3.9米),两层半独栋/双拼,首层7.2米,二层4.2米,三层3.9米(三层赠送一半面积);
面积灵活:900-4000平米
项目周边企业:央企中电科电子科技园,新加坡南洋投资物流园,新发地花卉交易中心等;
付款方式:一次性付款/分期/按揭;
交房时间:2022年10月